Whatsapp's de Atendimento
close

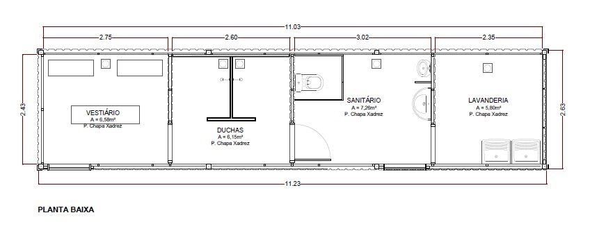
Vestiário/Lavanderia Herbicida Shelter

DESCRIÇÃO 

Utilização: Vestiário para o trabalhador, com lavanderia para descontaminar suas roupas de aplicação de produtos químicos (agrotóxicos, venenos, herbicidas, etc) sendo todos os cômodos separados conforme a Norma Regulamentadora NR-31.

Layout: 02 chuveiros    -    01 mictório    -    01 pia    -    01 tanque de lavar roupa    -    01 máquina de lavar roupa

Dimensões Internas:  Comprimento: 11,00m x Largura: 2,40m x Altura: 3,00m

Dimensões Externas:  Comprimento: 11,20m x Largura: 2,60m x Altura: 3,75m

Peso total: 4000kg

Capacidade de carga: 500kg/m2 

Prazo de entrega: 60 dias para entrega no local acordado em contrato.